2026 | Professional

Entrant
Category
Client's Name
Country / Region
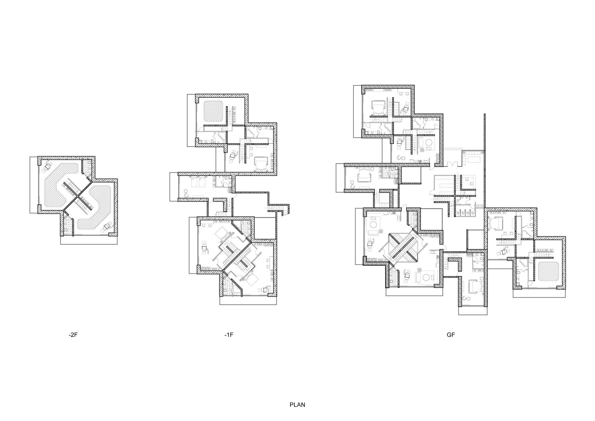
This project is located in a mountain resort in Yaoshi Town, Shangluo, Shaanxi Province. The building is constructed along the river.
The hotel is surrounded by mountains, and each direction offers a unique view. In addition, the guest rooms are relatively large and mainly designed for families or group visitors. Therefore, each rental unit usually includes two to three rooms. Based on this condition, we tried to break the traditional hotel room layout so that each unit could enjoy natural views from at least two directions. To achieve this, we explored several design options for the staircases inside the building. The final design creates a circulation system that is complex but well organized.
The building uses rammed earth, a material commonly used in local houses, as the main construction material. To achieve its unique texture, we carried out a series of material experiments. This approach not only respects local culture but also reflects an environmentally friendly design idea.
Credits
Entrant
Sally Lee Studio
Category
Conceptual Design - Art & Sculpture
Entrant
Chance Interior Design
Category
Interior Design - Residential
Entrant
TBI MOTION TECHNOLOGY CO.,LTD
Category
Product Design - Industrial Equipment, Machinery & Automation
Entrant
HWAN TAI GROUP / UETERNITY
Category
Interior Design - Office