2026 | Professional

Entrant Company
Category
Client's Name
Country / Region
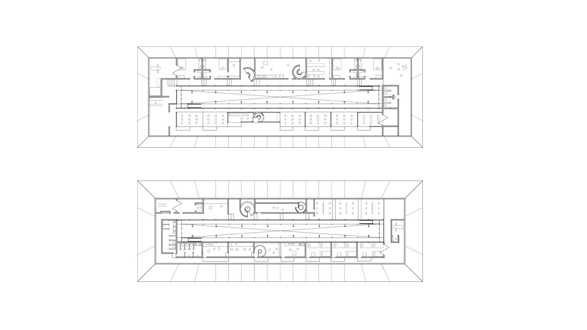
The prompt is programmatically extended into a dwelling and laboratory for both scientists and the public. The suspension in the air—drifting above—reverses the amplification of gravity. The tensile structure wraps around the building mass and its construction foundation, connecting to the underground weight.
Within the mass, the architectural language is conceived as an extension of the earth: a diagram of two surfaces extended from the ground and interlaced with one another. One surface is designated for permanent and temporary scientists, while the other serves public visiting and educational purposes. Conceptually, it is perceived as an ascending surface, or as the literal articulation of a planar surface.
Credits
Entrant Company
Chucheng Interior Design & Renovation Co., Ltd.
Category
Interior Design - Residential
Entrant Company
ONEZEROIDDESIGN
Category
Architectural Design - Commercial Building
Entrant Company
N1 Design
Category
Interior Design - Residential
Entrant Company
Creep Design studio
Category
Interior Design - Beauty Salon